
Family house near Kyiv
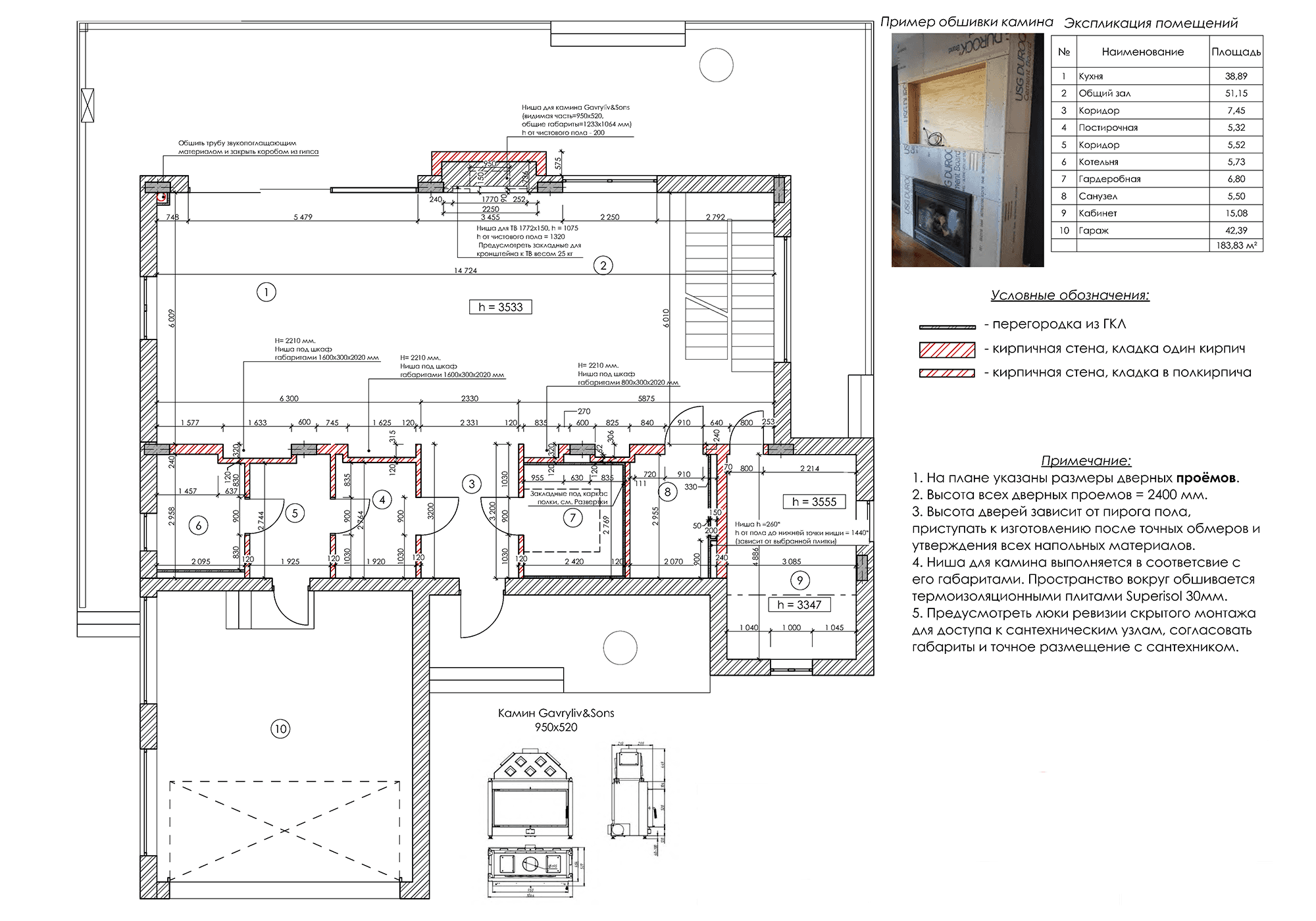
The first floor of the house with open plan was allocated for the guest and technical areas, where a guest bedroom, a large kitchen-studio with access to the courtyard and technical rooms were placed. The second floor is occupied by sleeping areas: a children's bedroom, a master bedroom and bathrooms.
The muted shades in the interior decoration of the house were supposed to create a cozy and bright space that would harmoniously frame the forest landscape outside the window and create a mood of meditative calm.
The customers wanted to make the renovation beautiful, but as economical as possible, so to save the budget, they mostly used purchased furniture (kitchen from IKEA etc).
2021
Design development partly Drawings











