
Family house, San Ramon, California
One of the first experiences of cooperation with American customers. At the request of the homeowners, we developed a design for a studio kitchen and bathrooms.
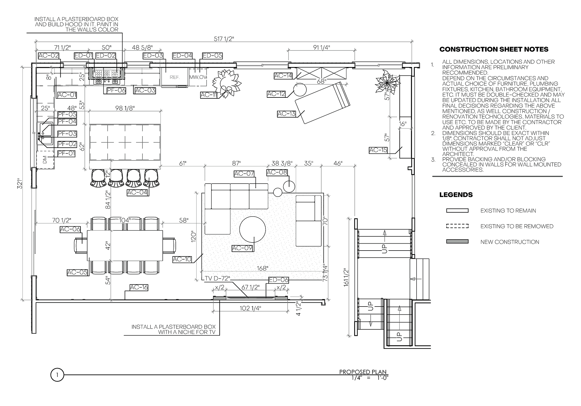
Initially, the kitchen, living room and dining room were separate rooms. The walls were dismantled and layouts were redesigned. The interior was designed in the style of modern American classics. The client loves gold, so we filled the room with details in this color. To balance out its brightness, we made the walls and upholstered furniture mostly in neutral shades so as not to overwhelm the psyche. And the kitchen is an accent emerald color. The owner also chose black tiles in the bathroom and washbasin. So we worked with the selected items.
The main obstacle in working with the American market is the high price of custom-made furniture. So almost the entire interior consists of items purchased from local stores in their standard style. The colors, textures, and look of the furniture are mainly dictated by what is available for sale.
2022
Design development Selection of materials and furniture SketchUp visualization Drawings














