
Apartments Pankowska str. Kyiv
The project was aimed at a young, active busy person or couple. Modern and minimalist style. This is an apartment for rent. For gatherings with friends listening to vinyl or watching movies. Opposite the sofa, there is a canvas for a flush-mounted projector on the ceiling.
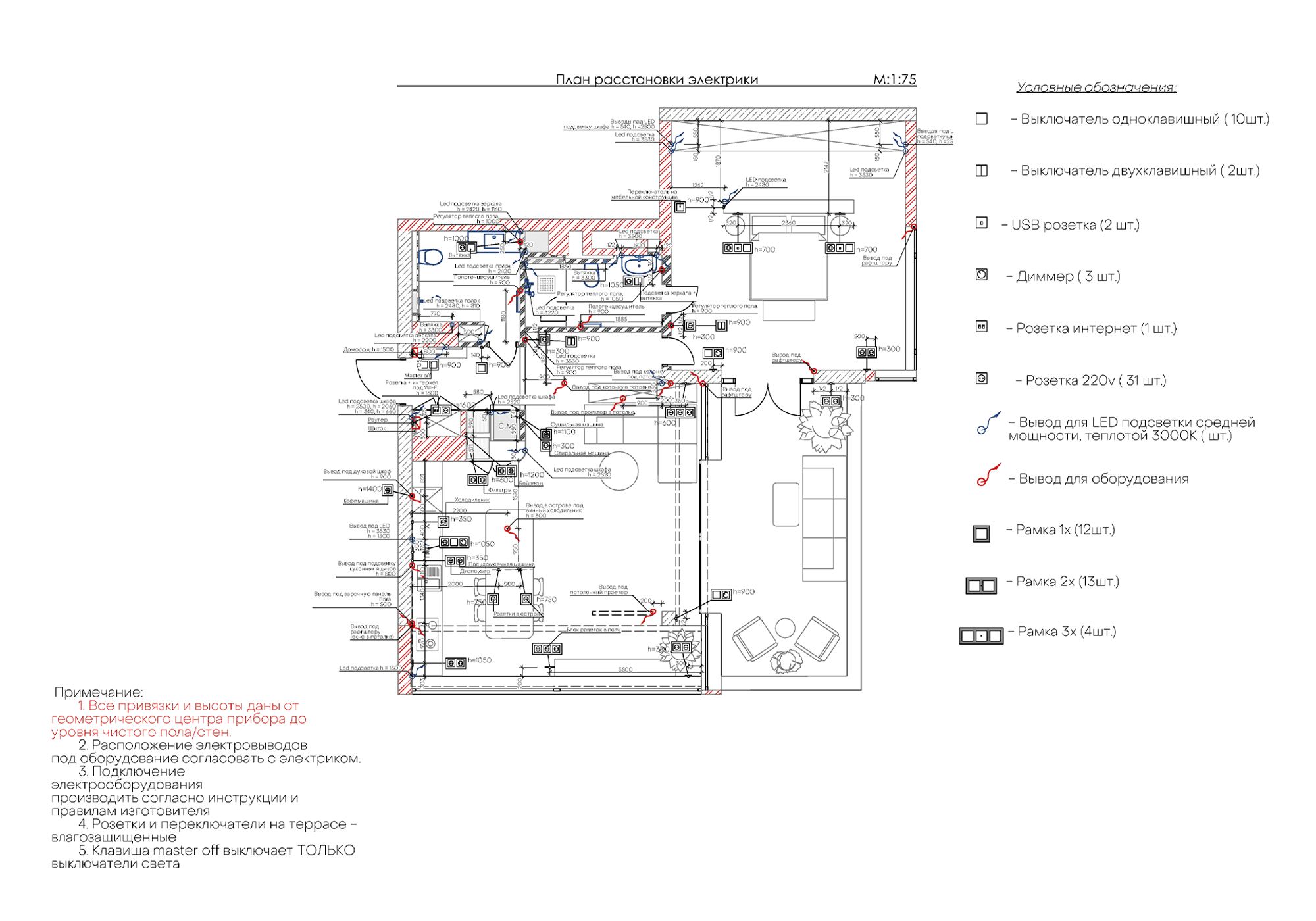
The client likes concrete, so we left it clean and varnished in the load-bearing walls and on the ceiling. There was also a request to abandon the overhead light, so there is almost no in the premises, instead we made LED lighting along the walls under the ceiling and added many sockets for the potential possibility of placing a floor lamp in different areas in the apartment.
In the center of the composition, I made a color accent in the form of a red cube, which is a multifunctional block because it hides the hallway and contains 2 wardrobes, a washer and dryer, and water filters.
2021
Design development SketchUp visualizations Drawings














