
Generator coworking, Kyiv
A constructivist building designed by architect Joseph Karakis in 1932, converted and renovated in 2021 by SHE BURO. On the territory of more than 2500 m2 of space includes office space, a lecture hall, a restaurant and a coworking space.
The eclectic design is filled with vintage furniture, sculptures, paintings, plants and natural materials, naturally aged - emphasizing the history of the building and creating the atmosphere of a cozy flea market where you can always find something new for yourself and get inspired.
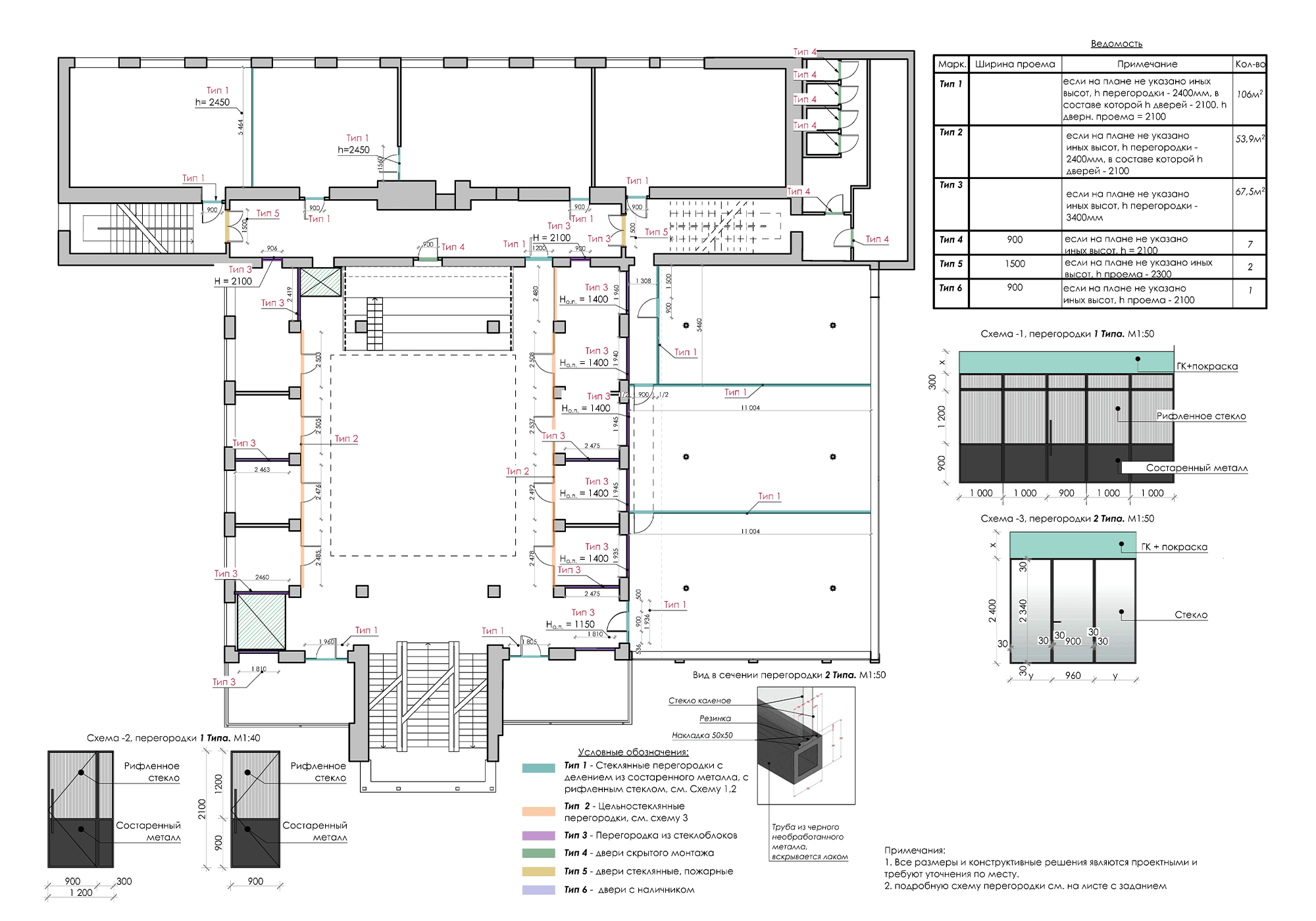
The coworking space has different zones, more open for socializing and, conversely, more intimate for calming down. For this project, I developed almost all the drawings of furniture, decorative details, partitions, plans, and partially participated in the equipment and design development.
2021
Drawings Completation


















